244 Manor Blvd, Hamilton Township, NJ 08620
Toggle Navigation
Images
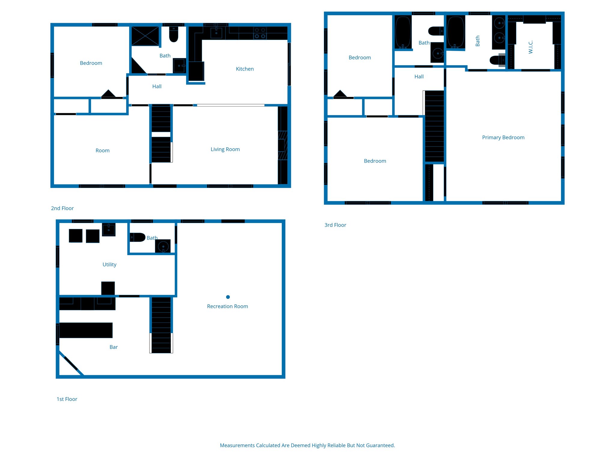
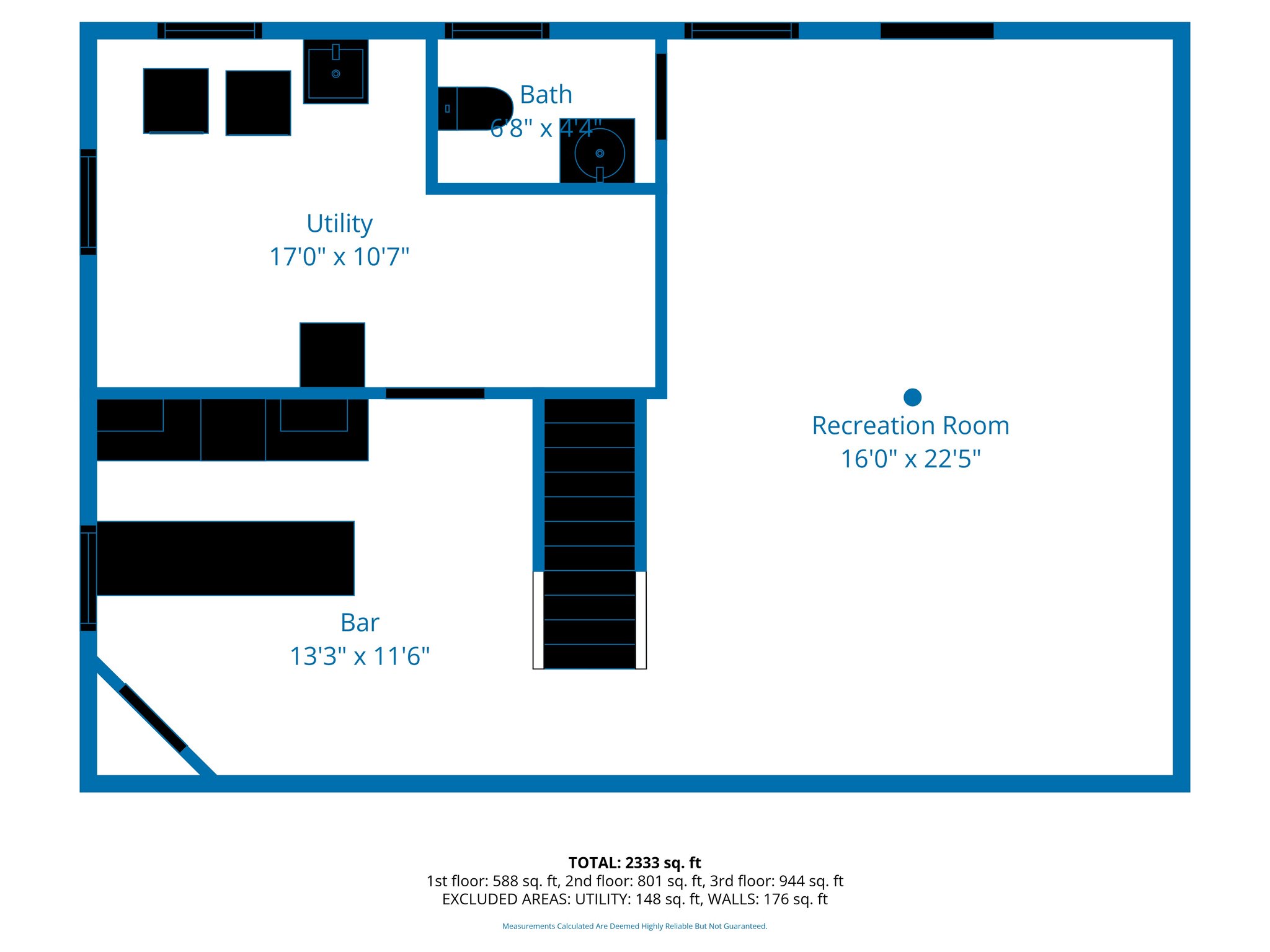
Floor Plans
Map
Previous Photo
Next Photo
Images
Slideshow
Photo Grid
Hide
Previous
Next
Show more
Floor Plans
Slideshow
Photo Grid
Hide
Previous
Next